Bilocale in vendita

Chivasso, Via Lungo Piazza D'armi - Centro
€ 87.000
2 locali 2 locali
74 Mq 74 Mq
1 bagno 1 bagno

Bilocale in vendita

Chivasso, Via Lungo Piazza D'armi - Centro

Descrizione annuncio

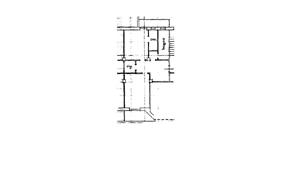
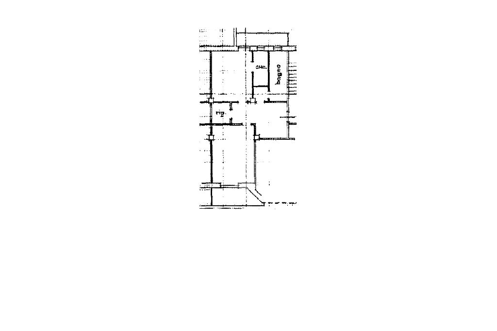
Nel cuore del centro di Chivasso, proponiamo in vendita un appartamento di 74 mq, situato al piano terzo di uno stabile con ascensore. L'appartamento si compone di due locali ben distribuiti, ideali per chi cerca una soluzione abitativa funzionale e accogliente. La disposizione interna offre uno spazioso tinello con cucinotto, perfetto per chi ama cucinare e intrattenere. La camera da letto è di generosa metratura e ben illuminata, garantendo un ambiente confortevole per il riposo. La posizione centrale dell'appartamento consente di accedere facilmente a tutti i servizi e le comodità che Chivasso offre, rendendolo una scelta pratica per chi desidera vivere in una zona ben servita. L'edificio, risalente agli anni '70, conserva il fascino dell'epoca, offrendo al contempo la possibilità di personalizzare gli spazi secondo le proprie esigenze.

Mostra tutto

Nelle vicinanze

Trasporto pubblico Trasporto pubblico
stazione di Chivasso
stazione di Chivasso
560 m
Chivasso (v. Lungo P.za D'Armi)
Chivasso (v. Lungo P.za D'Armi)
70 m
Chivasso (P.za D'Armi-CRT)
Chivasso (P.za D'Armi-CRT)
130 m
Ricariche auto elettriche Ricariche auto elettriche
CHIVASSO Gerbido | ENELX
670 m
Chivasso Stradale Torino
680 m
Chivasso Ceresa | EnelX
690 m
Chivasso Blatta | Enelx
870 m
evway Bennet Chivasso
1,5 Km
Scuole Scuole
Scuole
310 m
Scuola media "Demetrio Cosola"
330 m
Liceo Classico-scientifico "I. Newton"
460 m
Farmacia Farmacia
Farmacia
140 m
Dietosan
210 m
Ospedali Ospedali
Ospedali
700 m
Supermercati Supermercati
Eurospin
120 m
LIDL
190 m
Carrefour
610 m
Supermercati
830 m
Il Gigante
980 m
Negozi Negozi
OVS
110 m
Bar Bar
La Piazzetta
210 m
Duomo
220 m
Bar
450 m
Buffet Stazione
560 m
Le Bionde
640 m
Ristoranti Ristoranti
La Voglia
20 m
Aquila Nera
170 m
italo brasiliano
210 m
Pizzeria al vecchio mulino
230 m
Il Buffet
570 m
Mostra tutto

Caratteristiche

Rif.:
61120574
Piano:
3 di 5 con ascensore (Piano medio)
Balconi:
2
Camere da letto:
1
Arredamento:
Assente
Condizionamento:
Assente
Mostra tutto
Prezzo Prezzo
€ 87.000
Rata mutuo Rata mutuo
€ 399 / mese
Proponi il tuo prezzoProponi il tuo prezzo

Classe Energetica

F
F
F
F
F
F
F
F
F
EP globale non rinnovabile:
320.18 kW h/m² anno
EP globale rinnovabile:
158.16 kW h/m² anno
Anno di costruzione:
1965
Riscaldamento:
Centralizzato
Tipo impianto:
A radiatori
Tipo alimentazione:
Metano

Ti interessa visionare l'immobile?

Fissa un appuntamento  Fissa un appuntamento

Richiedi informazioni

* Questi campi sono obbligatori

Calcola il tuo mutuo

Semplice e senza impegno
Anticipo

( % )
Mutuo

( % )

pochi semplici passi

inserisci i tuoi dati
Questionario completato
Grazie per aver richiesto un appuntamento senza impegno con un nostro Consulente del Credito e Assicurativo.

Hai inserito correttamente tutti i dati necessari e a breve riceverai una e-mail con un link da convalidare per inviare i tuoi dati.
Affiliato
Chivasso Immobiliare Sas
Via Torino, 80 10034 Chivasso (TO)

Il nostro staff


  • Alessandro Canuto
    Affiliato
Via Torino, 80 10034 Chivasso (TO)
Zona: Chivasso Centro - Via Torino
Mostra su mappa
Orari: da lunedì a venerdì ore 09:00 / 12:30 e 15.00 / 20:00 - sabato ore 09:00 / 12:30 e 15.00 / 18:00
Affiliato
Chivasso Immobiliare Sas
Via Torino, 80 10034 Chivasso (TO)

2025 Tecnocasa Franchising S.p.A. - P. IVA 08365160152 - Via Monte Bianco 60/A 20089 Rozzano (MI). Ogni agenzia ha un proprio titolare ed è autonoma. Privacy policy | Policy utilizzo | Cookie policy